ivanzoid Опубликовано 6 апреля, 2017 Поделиться Опубликовано 6 апреля, 2017 Итак... Мы сегодня как раз катались и я захватил рулетку) Что есть сейчас: По чертежу Дяди Мити (если я верно понял что начинаем от края самой верхней ступени): 1 Цитата Ссылка на комментарий Поделиться на другие сайты Поделиться
krazymouse Опубликовано 6 апреля, 2017 Поделиться Опубликовано 6 апреля, 2017 пандус практически упрется в стенку... Цитата Ссылка на комментарий Поделиться на другие сайты Поделиться
ivanzoid Опубликовано 6 апреля, 2017 Поделиться Опубликовано 6 апреля, 2017 Ну я только нарисовал) До стенки да, вообще не помню какое расстояние Цитата Ссылка на комментарий Поделиться на другие сайты Поделиться
Андрей_S Опубликовано 6 апреля, 2017 Автор Поделиться Опубликовано 6 апреля, 2017 Топосъемку тут выкладывать не могу. Снял с нее основные размеры 2 Цитата Ссылка на комментарий Поделиться на другие сайты Поделиться
krazymouse Опубликовано 6 апреля, 2017 Поделиться Опубликовано 6 апреля, 2017 тогда получается,что войдет. Цитата Ссылка на комментарий Поделиться на другие сайты Поделиться
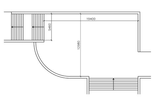
ivanzoid Опубликовано 7 апреля, 2017 Поделиться Опубликовано 7 апреля, 2017 Вот что-то такое выходит: 7 Цитата Ссылка на комментарий Поделиться на другие сайты Поделиться
Andrew55 Опубликовано 7 апреля, 2017 Поделиться Опубликовано 7 апреля, 2017 Убейся ап стену заиграло новыми красками;) 2 Цитата Ссылка на комментарий Поделиться на другие сайты Поделиться
ivanzoid Опубликовано 7 апреля, 2017 Поделиться Опубликовано 7 апреля, 2017 Да, вот тут бы ещё дорожку расширить и угол подсрезать где стена, и совсем было бы хорошо (а то сейчас летом постоянно пешеходы и велосипедисты друг другу мешаются в этом месте): 4 Цитата Ссылка на комментарий Поделиться на другие сайты Поделиться
Дарт Вейдер Опубликовано 5 мая, 2017 Поделиться Опубликовано 5 мая, 2017 вчера был обруган пешеходом )) еду от шарика к пляжу, примерно напротив загса, там где узенько у забора. пешеходов и веллеров вчера сами знаете, если выгуливались. думаю чегож мешать то, тоеду по травке, рядом с тротуаром. и слышу накипевшее (вот прям взрывное) возмущение от парня в мою сторону- " :angry: какого хера, есть же вело дорожка, ну куда вы прётесь по пешеходке :angry: " меня чего то это задело, останавливаюсь. подъезжаю поговорить )). пытаюсь объяснить- "я вообще по газону еду, чтоб вам любимым пешеходам не мешать, потому как и велодорожка и пешеходная зона всё в кучу забито!" в общем повыясняли, правда у каждого своя, говорю "чувак мир!?" пожал ему руку и поехал дальше. а сам думаю, ведь не будет ни когда любви и взаимопонимания между пешиками и веллерами, как ни старайся. ведь он спецом с велодорожки ушёл, а я так вообще по траве ехал, и всё равно... 1 Цитата Ссылка на комментарий Поделиться на другие сайты Поделиться
Юки Опубликовано 5 мая, 2017 Поделиться Опубликовано 5 мая, 2017 (изменено) я вчера тоже офигела от количества кеглей на набке после Шарика. на Тухачевского и Зеленке кстати этот показатель был в пределах нормы, а ближе к центру уже возникло ощущение "атас, они ползут на свет!" :D . но все решилось само собой - жуткая судорога правой ноги, внезапно одолевшая меня при остановке у Сенкевича, убила остатки желания двигать дальше :( Изменено 5 мая, 2017 пользователем Юки Цитата Ссылка на комментарий Поделиться на другие сайты Поделиться
krazymouse Опубликовано 5 мая, 2017 Поделиться Опубликовано 5 мая, 2017 Вчера на велодорожке в Ларе нас тоже обшипели. Но мы стойко положили болт и поехали дальше:-) Цитата Ссылка на комментарий Поделиться на другие сайты Поделиться
SVeslom Опубликовано 5 мая, 2017 Поделиться Опубликовано 5 мая, 2017 В школе когда учился, говорили году к 2005 нефть кончится и все на велосипеды пересядут. Видимо плохие учителя были. А ведь примерить нас только такое событие сможет, приведение к общему знаменателю. Цитата Ссылка на комментарий Поделиться на другие сайты Поделиться
Andrew55 Опубликовано 5 мая, 2017 Поделиться Опубликовано 5 мая, 2017 В школе когда учился, говорили году к 2005 нефть кончится и все на велосипеды пересядут. Видимо хуевые учителя были. А ведь примерить нас только такое событие сможет, приведение к общему знаменателю. Эт как конец света! Все наступает и наступает, а наступить никак не может;) Цитата Ссылка на комментарий Поделиться на другие сайты Поделиться
U-man Опубликовано 19 июня, 2017 Поделиться Опубликовано 19 июня, 2017 Ух дорожка с пантусом у лен моста в сторону порта будь она неладна! Вчера возвращались по ней и не смогли съехать по пантусу, а всё вот почему. Прямо перед нами, "съезжала"(вот всё в толк не возьму, нафига они не едут и не идут, ведя вел, а катятся, отталкиваясь одной ногой вниз, будто так удобнее всего) деваха и завалилась либо на нижней секции, либо уже после неё, т.к. отряхивалась прям после съезда, перегораживая его, помогали ей в этом деле пара её кавалеров, кои побросали свои ашаны так же на пути съезжающих/поднимающихся велосипедистов. Мы наверху, съехать не вариант, пытаюсь доораться, чтоб от съезда отошли - смотрят тупыми глазами, но агресии не проявляют. Плюнули, спустились по лестнице(у меня кресло с дитём, у спутницы баул здоровенно-тяжеленный). Уже внизу, спустившись, вновь пытаюсь достучасься до процессии, мол свалите нанос с пути в сторонку и приводите барышню свою там в чувство, но вновь тупой взгляд и ответ, мол чем мы мешаем. Обьяснить пытался, но так и не смог донести, что они и без того не самый приятный проезд перегородили. Вновь плюнул в сердцах и поехали мы своей дорогой. Хочется верить, что на том эпизоде их неприятности на пантусе окончились. 2 Цитата Ссылка на комментарий Поделиться на другие сайты Поделиться
Серьга Опубликовано 19 июня, 2017 Поделиться Опубликовано 19 июня, 2017 Выехал со своим своим скарбом на НЕвелодорожку и права качает. Цитата Ссылка на комментарий Поделиться на другие сайты Поделиться
Alexandr_VV Опубликовано 21 июня, 2017 Поделиться Опубликовано 21 июня, 2017 (изменено) Эх, сегодня сгонял в центр по дороге, обратно решил прошвырнуться по набережной, типа по велодоржке :rolleyes: Кого только там не встретил: гуляющие компании, парочки в обнимку, мамы с колясками, мамы с колясками и кучей детей вокруг, папы с колясками собачками на поводках... плюнул, выбрался обратно на дорогу и поехал по своим делам дальше B) Изменено 21 июня, 2017 пользователем Alexandr_VV 1 Цитата Ссылка на комментарий Поделиться на другие сайты Поделиться
Andrew55 Опубликовано 21 июня, 2017 Поделиться Опубликовано 21 июня, 2017 (изменено) Эх, сегодня сгонял в центр по дороге, обратно решил прошвырнуться по набережной, типа по велодоржке :rolleyes: Кого только там не встретил: гуляющие компании, парочки в обнимку, мамы с колясками, мамы с колясками и кучей детей вокруг, папы с колясками собачками на поводках... плюнул, выбрался обратно на дорогу и поехал по своим делам дальше B) Это потому что вы там ездить перестали вот оне и заполонили!;) Изменено 21 июня, 2017 пользователем Andrew55 1 Цитата Ссылка на комментарий Поделиться на другие сайты Поделиться
Alexandr_VV Опубликовано 21 июня, 2017 Поделиться Опубликовано 21 июня, 2017 (изменено) А я там практически никогда и не ездил ^_^ Только вот редкими случаями. Так-то всегда по дорогам. Может я такой-вот экстремал, но считаю, что для привлечения внимания администрации к проблемам велосипедистов надо всем дружно выехать на дороги и не уступать своих законных мест всем остальным видам транспорта. Пусть уже подстраиваются под нас! :P Всех не передавят! Но пасаран! :P Изменено 21 июня, 2017 пользователем Alexandr_VV 2 Цитата Ссылка на комментарий Поделиться на другие сайты Поделиться
soci0pat Опубликовано 11 июля, 2017 Поделиться Опубликовано 11 июля, 2017 думается мне, что надо пошире и положе, дабы мамашки с колясками тоже имели возможность пользоваться данным инженерным сооружением, не создавая аварийных ситуаций. Равно как и наоборот, чтобы велосипедисты имели возможность разъезжаться с мамашками с колясками без создания аварийных ситуаций и посыла лучиков бобра. Но думается мне, что забубенят пологий спуск и будет там куча народа шляться как с другой стороны моста. Золотые слова... КМК, надо везде ступеньки в пандусы превратить, раз ни веллерам они не нужны, ни пешеходы ими не хотят пользоваться. 1 Цитата Ссылка на комментарий Поделиться на другие сайты Поделиться
ZXC_Andrey Опубликовано 6 августа, 2020 Поделиться Опубликовано 6 августа, 2020 Внимание. На велодорожке яма. Место Флора (Воскресенский сквер). Съезд с Набережной Тухачевского. Сегодня пешком в 4 часа ночи проходил видел один велосипедист влетел и ободрался. Ограждение в темноте незаметно. P.S. Место коварное. Нет освещения и на спуске. Несколько лет назад там же м-ки поставили лавки поперек. Ночью чуть не врезался. Цитата Ссылка на комментарий Поделиться на другие сайты Поделиться
U-man Опубликовано 6 августа, 2020 Поделиться Опубликовано 6 августа, 2020 это ловушка для ниндзь) Цитата Ссылка на комментарий Поделиться на другие сайты Поделиться
krazymouse Опубликовано 15 августа, 2021 Поделиться Опубликовано 15 августа, 2021 кажется, они о чем-то начали догадываться.... Цитата Ссылка на комментарий Поделиться на другие сайты Поделиться
S@ruman Опубликовано 15 августа, 2021 Поделиться Опубликовано 15 августа, 2021 Поэтому принято решение демонтировать её за 100500 миллионов Цитата Ссылка на комментарий Поделиться на другие сайты Поделиться
Рекомендуемые сообщения
Присоединяйтесь к обсуждению
Вы можете написать сейчас и зарегистрироваться позже. Если у вас есть аккаунт, авторизуйтесь, чтобы опубликовать от имени своего аккаунта.